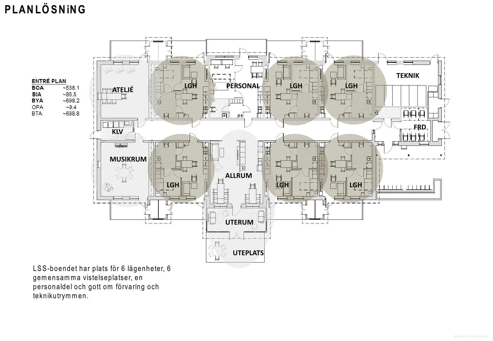
LSS UBBY
Projekt: Ta fram ritningar till ett LSS boende åt en fastighetsutvecklare
Plats: Stockholm
Beställare: Företag
Status: Pågående
Projekt: Ta fram ritningar till ett LSS boende åt en fastighetsutvecklare
Plats: Stockholm
Beställare: Företag
Status: Pågående